Terrain libre de constructeur
À partir de 245400 €
Terrain constructible à Damgan, à deux pas de l’océan
Damgan, le charme d’une vie en bord de mer
Imaginez votre maison à 8 minutes à pied de la plage, dans une station balnéaire prisée du Morbihan. À Damgan, vous vivez au rythme de l’océan, dans une commune qui mêle authenticité bretonne, nature préservée et dynamisme touristique. Nichée entre la presqu’île de Rhuys et l’estuaire de la Vilaine, Damgan offre une qualité de vie rare, avec ses 8 km de plages, son port de Pénerf, ses marchés animés et ses sentiers côtiers.
Accessible en 25 minutes depuis Vannes, cette commune du Parc Naturel Régional du Golfe du Morbihan est une destination idéale pour un projet immobilier entre détente, patrimoine et investissements durables.
Des terrains prêts à bâtir pour vivre ou investir
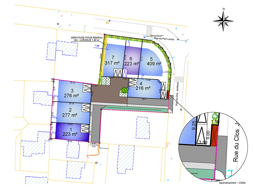
Le lotissement Le Clos du Rivage vous propose 7 terrains à vendre, viabilisés et libres de constructeur, dans un quartier calme, à seulement quelques pas du centre et de la mer.
✅ Surfaces de 317 m² à 409 m²
✅ À partir de 190 200 €
✅ Livraison prévue : immédiate
✅ Financement : Prêt à taux zéro
Construisez ici votre résidence principale, votre maison de vacances ou un bien locatif dans une commune à la demande forte. Avec son climat océanique doux, sa notoriété touristique et son cadre naturel d’exception, Damgan est une valeur sûre pour investir dans la pierre.
Une vie active entre plage, nature et patrimoine
À pied, à vélo ou en kayak, vous profitez d’un cadre unique : plages de sable fin, pêche à pied, promenade sur la ria de Pénerf, dégustation d’huîtres locales, marchés traditionnels… L’ambiance est chaleureuse, les activités nombreuses, les paysages saisissants.
✅ Le Clos du Rivage, c’est l’occasion de faire rimer cadre de vie exceptionnel avec liberté de construire, dans l’un des plus beaux endroits du littoral breton.
-
Ville
Damgan -
Département
Morbihan -
Livraison
22/04/2026
-
Nombre de lots
7 -
Type de lots
-
Dispositif fiscal
Accession Terrain
Détails des biens disponibles
Tous nos terrains
| Prix | Type | Surface | |
|---|---|---|---|
| 245.400 € TVA 20% | Terrain | 409.00 m² | Plus d'infos |
