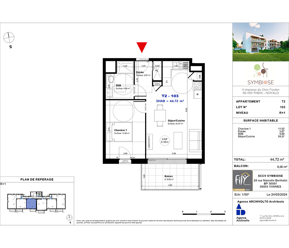
201.000 €
TVA 20%

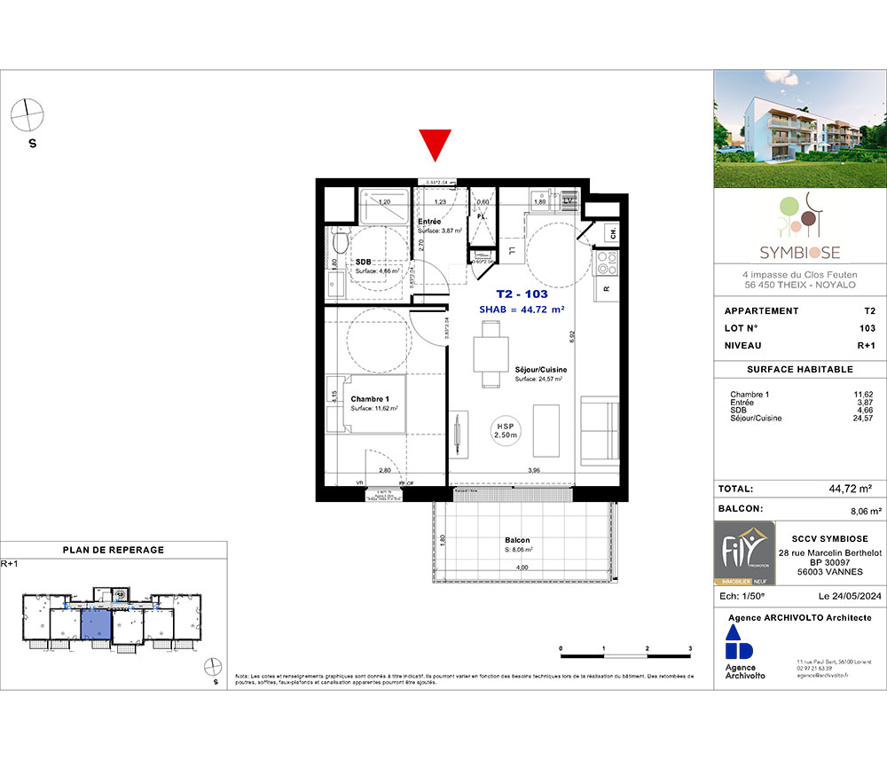
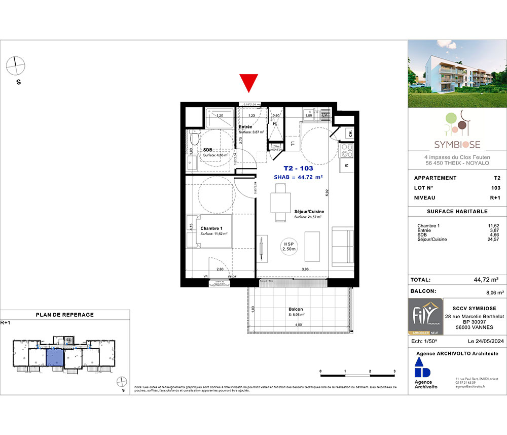
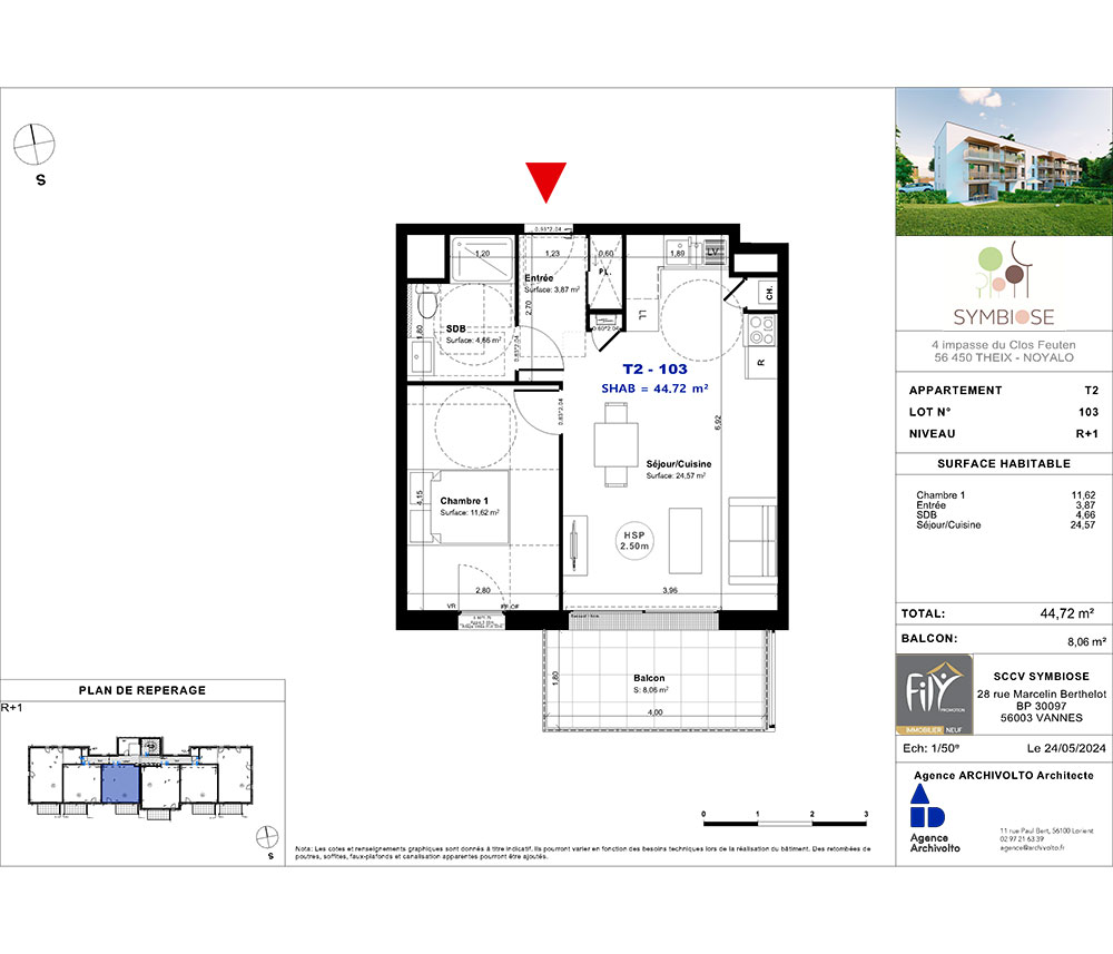
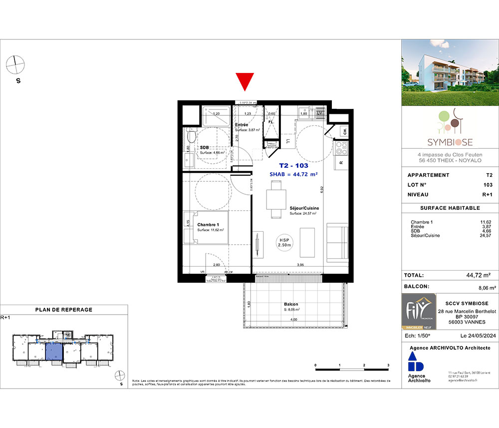
Le programme neuf
Symbiose
Theix-Noyalo allie les attraits d'une ville de taille moyenne avec le calme d'un environnement naturel. Située à seulement 10 minutes de Vannes et à une minute des axes menant vers Rennes, Nantes ou Lorient,cette commune offre une accessibilité exceptionnelle.Vous apprécierez la proximité des superbes plages de la presqu'île de Rhuys. Vivre dans le Golfe du Morbihan, c'est profiter de la sérénité d'un cadre naturel préservé. SYMBIOSE, situé au coeur de Theix, est bien plus qu'un projet immobilier, c'est un véritable art de vivre. Cette résidence de 16 appartements se distingue par son style raffiné et élégant. Son architecture intemporelle s'intègre avec harmonie à l'environnement extérieur grâce à des jeux de matériaux, et notamment du bois. La lumière naturelle inonde chaque appartement, créant une atmosphère chaleureuse et apaisante.Ici, la sérénité du lieu se marie parfaitement avec le confort moderne
